隨著經營走上正軌,如何進行規模化門店復制,進入餐飲品牌連鎖發展,目前經營的門店無論是形象還是深度都遠遠不夠。比如目前門店的品牌名很多消費者都看不懂,整體的門店形象也不夠鮮明,沒有自身獨有風格和特色;與一些連鎖品牌料理店競爭,缺乏自身的核心優勢。兩位創始人希望依靠品深餐飲的全案策劃設計力量,在老店經營經驗的基礎上,建立新的品牌名稱和形象,優化菜品結構,穩定出品口味,打造愉悅舒適的用餐環境,重新規劃出一家符合當下經濟環境的日本料理連鎖品牌,用3-5年的時間實現粵港澳大灣區連鎖100家的事業藍圖!
一、餐飲市場定位
選擇能夠放大自身競爭優勢的細分品類!
品深餐飲全案策劃設計認為:新品牌創立之初,
明確的市場定位就是為了使自己的產品和服務在公眾和目標市場消費者的心智中占據明確的,獨特的,倍受歡迎的地位而做出的各種決策和進行的各種營銷活動,從而為餐飲品牌的產品和服務在市場上確定明顯的位置。
市場定位包含了消費群體的定位,產品的定位、品牌文化及形象的定位、價格定位,服務標準的定位等幾個方面。
我們計劃要做的日本料理,市場的定位又從何而來呢?明確的市場定位從來都不是拍腦袋得來的,是需要全面深入的市場調研和企業內部訪談,行業資料情報收集,綜合分析后規劃確定的。
品深餐飲項目組成員深入深圳、廣州、上海等地,現場走訪并品嘗了大眾點評網排名前列的日本料理品牌店。具體有廣州的白金酉玉、摩打食堂、蔥間、小山,深圳的鳥金、鳥鵬、本源食集等,上海的三川十酒等。通過實地走訪及訪談,我們從不同的角度、維度親身體驗友商的各個方面:對友商的市場定位、產品結構、口味特征,產品價格、形象特點、廣告宣傳,門店大小、裝修風格、家具材料、燈光照明,餐具設備,服務水平,并收集了他們的菜譜菜單、門店各種應用物料等等。
除了外部的市場考察,
我們還對企業內部進行了詳細的調研
調看企業目前經營的日料門店的營業流水數據。內部調研的意義在于分析總結出企業現階段的核心競爭優勢。餐飲品牌崛起并規模化復制擴張的基礎在于核心優勢是否具備且持續穩固,創始人的事業格局,團隊價值觀和理念等。我們走進企業內部對餐飲品牌的創始人、產品的研發負責人、門店管理者分別進行訪談,對門店的管理系統,供應鏈體系,盈利狀況進行察看。
內部訪談和調研是總結品牌優勢,提取品牌基因,挖掘品牌文化非常關鍵的環節,這方面的調研在整個項目進行中可能需要進行數次,并在不斷的思想碰撞中,形成明確的品牌戰略規劃。
在取得了內外部的調研數據和一手資料后,我們還廣泛收集有關日本文化、日本料理的各種資料。從日本的園林建筑、生活方式,審美情趣,民宿酒店、民俗文化、飲食特點、山川風物、風土人情等各個方面全方面收集匯總,歸納整理,消化吸收,為新品牌的構建打下堅實的文化基礎。
二、界定細分品類
日本料理燒鳥居酒屋
在完成市場考察、內部調研及各項資料匯總并匯報后,甲乙雙方團隊進行了首次項目提案,充分的分析及坦誠的溝通后,甲方最終選定燒鳥居酒屋品牌進入的細分領域。
為什么要選擇燒鳥居酒屋這一品類而不是其他品類呢?
1、甲方目前的實力規模、門店數量,經營管理體系、團隊實力等還不足于支撐整個公司做高端日本料理如海鮮刺身、和牛爐端燒,所謂基礎不牢,地動山搖。
2、日式拉面和日式蓋飯、壽司,市場上已經有了比較大的連鎖品牌,而且品牌知名度很高,我們啟動新品牌與這些經營了20年的大牌競爭,沒有任何優勢可言,難度不是一般的高!
3、其他如壽喜鍋,日式甜品,可以作為我們的產品補充,目前企業自身的廚師研發能力暫時還不具備以此品類形成完整的產品鏈,單獨開設門店的時機。
4、我們定位的燒鳥居酒屋:產品以熟食燒鳥為主,以刺身為輔,加調酒和日式酒水,輔以午市定食和外賣。
人均消費在120-180元,以晚市及宵夜為主。定位為粵港澳大灣區的環境很日式、出品很地道、服務有特色,精致有品但很親民的燒鳥居酒屋。
5、燒鳥居酒屋核心產品是燒鳥,所選用的食材為走地雞。我們中國市場各地農家散養的三黃雞,皮脆肉緊,特別適合做燒鳥,食材供應鏈非常穩定。以雞為品類的菜品消費在中國有強大的味蕾基礎,消費者人群跨越幾個年齡層,數量足夠龐大。
6、燒鳥與日本酒水具有天然的黏性,消費的彈性很大,人均消費額既可以低至100塊,高不封頂,客單價容易做起來,門店盈利容易做上去。
在當下的日本生活方式中,常去居酒屋的人都會說:“此地是生活里最能讓我松一口氣、得到治愈的地方。”每天被居酒屋治愈的熟客總是獨自前來,這也是居酒屋的美學——群眾中的孤獨。在這樣的地方,即便一個人也能放松,卸下了社會身份,不必顧慮他人眼光。按照人類生活的“三個空間”理論,能夠實現“無職業、無性別、無身份”的平等主義,并且讓靈魂得以棲息的“第三空間”,在法國是咖啡館,在英國是小酒館,在日本無疑就是居酒屋了。
7、一個實用面積約100平米的燒鳥居酒屋投資門檻低,
風險可控:作為新創品牌,在有限的費用預算中,控制投資預算,確保風險可控是商業投資的基本邏輯。
8、我們最終確定明確的定位表述就是:地道純正的日本燒鳥居酒屋,實惠價格沒有消費壓力。我們希望消費者這樣推介我們:這是一家日本料理中燒鳥做得很地道,刺身、壽司味道也很好,環境很日式很舒服,消費很實惠的日本燒鳥居酒屋老品牌!
三、品牌命名
如何降低品牌傳播成本和顧客的記憶成本?讓目標顧客一目了然,一見如故,一見傾心!
有了品牌的定位,我們還需要通過構建品牌完整的傳播話語體系,持續不斷將品牌傳播擴散出去。品牌的話語權源自于品牌自身不斷地傳播和訴求,如果這種傳播和訴求最終讓顧客接受并一起傳頌,品牌就能爆發強大的能量。
餐飲品牌傳播話語體系的核心是餐飲品牌名。無論是裝修設計、餐廳氛圍、菜品出品,后續都可以慢慢優化,唯有餐廳的品牌名,一旦確定就持續在傳播,想要調整是牽一發而動全身的。
品牌名的背后就是品牌傳播成本和顧客的記憶成本。取一個什么樣的餐廳品牌名能讓目標顧客一目了然,一見如故,一見傾心呢?
品深餐飲全案策劃設計機構總結了餐飲品牌命名方法論:
(1)盡量使用有意義的、具象的、有畫面感的詞匯。就是顧客看到文字,頭腦中自然浮現畫面;
(2)名字的本質是傳播成本,要簡單到小學生都能看懂。
(3)符合行業屬性,讓目標人群一見如故,一目了然,一見傾心。餐飲品牌名要讓顧客一看名字就能知道我們是餐廳,最好能看出我們是什么品類的,還能了解我們的核心優勢特色。
(4)盡量讓名字本身成為一個完整的廣告。
(5)意義要正面,符合社會公序良俗,品牌名要具備強大的勢能。
通過前期我們對日本文化、日本料理資料的歸納整理,吸收消化后,我們從中了解到
燒鳥是一種起源于17世紀日本江戶時代的雞類串燒。古代日本人能抓來烤著吃的“鳥”主要是鵪鶉、鴿子、鴨子、鵝、雞等禽類,后來慢慢富裕了,有錢了才講究。現在日本的燒鳥都是選用自由散養超過180天的走地雞,將雞各個部位的肉切成一口可吃下的大小,然后串成串兒用炭火烤制,金黃色的外表帶著誘人的香氣,肉質緊實有嚼勁,微微焦香,舌齒間口感妙不可言。
燒鳥所使用的炭是專用的
備長炭,備長炭以和歌山縣的橡木作原材料,高溫蒸燒制成。備長炭擁有細致而優良的質素,燃燒時火力穩定而持久,因此成為日本燒鳥料理店最上品的燒烤燃料,也是燒鳥的調料。
同期江戶時代日本賣酒的店叫“酒屋”。酒屋的本業是釀酒和賣酒。一般人到酒屋的目的就只是買酒。到了17世紀后半期,江戶地方的一些酒屋除了賣酒以外,也讓顧客在店里面喝酒。因為彼時的江戶有許多單身赴任的男人,外食文化盛行,去酒屋喝酒賴著不走,就是居酒。酒屋成為男人久“居”其中的“酒屋”。從日本料理的發展歷史中可以看出:居酒屋和燒鳥都是起源于日本的江戶時代,距今有400多年的歷史。
我們收羅并整理了江戶時期日本料理文化相關的
關鍵字如:京都、鴨川、德川家康、玉子燒、椿花、櫻花、藝妓、祇園、日本枯山庭院、日本清酒、七寶燒、茶道、花道、食隨四季、天婦羅、炙燒等等。
品深餐飲全案策劃設計團隊在討論中,大家都覺得“
椿”很有日本韻味,又能表達出精致感,且與我們做的燒鳥料理、居酒屋文化有明確的歷史邏輯關系。
“椿花”是日本對山茶花的稱呼,花期一般是在冬至春季。椿花的花色秀麗脫俗,香氣清新怡人,人聞到后有精神爽朗的感覺。在日本,椿花與櫻花齊名,被譽為“圣花”。奈良時代重梅、平安時代重櫻,到了江戶時代椿盛行。“椿”為貴族社會鐘愛,為武士階層尊崇,它被繪入圖譜中,被寫進詩歌、和歌、俳句中,被印刻在甲胄、刀劍、食器、酒器、漆器、屏風、和服上。
而且“椿”在中國文化中底蘊更加深厚。莊子《逍遙游》中有“上古有大椿者,以八千歲為春,以八千歲為秋。”對這句話的解讀是:人的知識范圍有限,以至每人的境界智慧的比量不同。壽命的長短,也是根據人知識的比量來的。生命生生不息,追求永無止境!
在椿的前面或者后面加個什么字好呢?
這是品深餐飲策劃一直以來的作業方式,選出合適的字,字組詞,考察詞的本義,延展意義,詞的讀音,傳播力,進行反復多次的比對。我們嘗試在椿的前面加上大“大椿”、加上玉“玉椿”,椿的后面加將“椿將”、加記“椿記”,經過不同商標注冊機構多次的查詢注冊,
最終發現“玉椿”通過注冊的概率是最高的。
“玉”在日本指的是寶石的意思,或很美麗的東西,或球形的物體等等。如玉子(日本雞蛋的別稱),半熟玉子就是半熟雞蛋(はんじゅくたまご),也就是五成熟的雞蛋,蛋身既有彈性又有流動性,可以拌飯吃。玉子燒(知名的一道料理),玉子豆腐,玉鋼(日本人對最優質并最合適做日本刀的鋼的美稱)。
玉椿燒鳥居酒屋
這個名稱傳達的日本料理的品類屬性非常明確;且“玉椿”二字符合品深餐飲對品牌提出的具象化的要求。“椿花”色彩鮮艷,非常美麗,高貴不凡,在未來的空間形象中,我們可以將它的文化深入挖掘,形成門店裝修的核心元素。
品深餐飲全案策劃設計的核心就在于讓餐飲品牌的各個要素都與其他要素一起發揮協同效應,從而使整體大于各部分之和,由此產生品牌共振力,讓餐飲品牌具備強大的勢能,才能實現標準復制,連鎖經營。
整個品牌策劃設計工作不是單純的上下工序流程問題,而是必須將品牌所要表達的核心內涵貫穿在整個品牌創建及后續營銷推廣中,始終圍繞該品牌如何進入消費者的心智進行持續發力。品深餐飲全案策劃設計在前期的定位、品牌命名階段就已經開始進行
品牌形象的頂層規劃及門店風格的基本定調。
品深餐飲提出的餐飲全案策劃設計是以企業的核心競爭力為基礎,通過對內外部競爭的分析,提取品牌核心優勢,在此基礎上進行準確的品牌定位,根據明確的定位再命名一個容易記憶傳頌,富有召喚力的餐飲品牌名字;通過品牌標志及形象的系統設計,將餐飲品牌名字及品牌核心優勢內涵具象化,圖形化,植入消費者心智模式中,形成品牌烙印;而餐飲門店的裝修設計、軟裝設計本質上屬于品牌形象策劃設計,是服務于品牌傳頌,是為了
讓消費者感受品牌獨具特色的用餐氛圍后產生記憶和傳頌。
所以,在餐飲全案策劃設計中,餐飲品牌,餐廳名稱的命名是核心基礎工作,是品牌規模化復制的關鍵所系,是我們后續各項工作的前提,可謂重中之重。
四、品牌具象化
圖形化,有效扎進消費者心智,留刻品牌烙印,構建品牌傳頌!
玉椿的定位是:“地道純正的日本燒鳥居酒屋,實惠價格沒有消費壓力。”
品牌的形象設計如LOGO標識,主色調,門店經營中日常的應用物料設計,空間中各種導視設計該如何系統全面地將品牌定位表達出來,有效扎進消費者的心智中,形成鮮明的品牌烙印?
品深設計認為:
LOGO標識是品牌形象的靈魂所在,需要表達品牌的品類屬性,品牌核心特征,品牌的文化內涵,是品牌調性的根本。
玉椿品牌LOGO采用了最經典的中國書法字體,用最經典的筆法、墨法表達我們對美食的理解:匠心傳承,質樸無華。用最直觀的字體來傳達品牌名稱,一目了然,一見如故。
流暢的字體線條,既有行書的飄逸兼具草書的豪放大氣,仿佛就是食客吃燒鳥擼串,喝清酒品料理的微醺狀態。
略顯厚重的筆劃,墨色飽滿,濃枯結合,類似燒鳥用的備長炭,暗合了我們的品類屬性。
右上側一個日式酒壺形狀,點明我們居酒屋的餐飲屬性,豐富品牌標識的整體外觀,降低傳播難度。
經過我們對日本文化的深入研究,了解到日本有非常獨特的“家元”文化:
師傅帶徒弟,徒弟忠誠師傅,父子相承襲,代代相傳。這種家元文化與日本的匠人精神相輔相成,創造了日本多達3146家超過200年以上歷史的企業。家元文化的一個重要精神符號及精神凝聚力的象征,就是家徽或店徽。日本的企業、家族甚至個人,都有精心設計的,屬于自己的圖形徽章。
品深餐飲團隊給玉椿的定位表述為 “
京都味道,匠傳玉椿”,我們精心設計的品牌徽章,既表明品牌純正日本燒鳥居酒屋的血統屬性,也昭示我們用心經營,代代傳承的理念與決心。
玉椿的品牌徽章圖形就定位為“
精神圖騰,匠心傳承”。
外觀以唐花菱為中心,是經典的木瓜紋,是日本大家族紋飾中最常見的一種圖形,
代表經典日本文化。整個徽章的外觀原型來自日本皇室三大神器——八咫鏡。八咫鏡起源于中國的水鏡,又稱“鑒”。日本人視鏡子為神圣物品,掛于胸前作為避邪用具。八咫鏡作為天照大神的御靈,祭在日本神社之祖伊勢神宮內,是日本上下臣民膜拜的神器,具有非常典型的象征意義,我們借過來用,就是品牌的借船出海,搭文化便車。中間斷開的線條,是玉字的變形,象征品牌典雅,精致的特性。徽章中間一個日本文字“椿”,精準表達品牌核心名。
我們希望透過這個書法文字的LOGO標識及輔助的家徽圖案塑造玉椿經典的日式美學氣質和料理文化底蘊。表達品牌傳承百年,初心如一的愿景,使之成為指引玉椿品牌前進的燈塔。玉椿燒鳥居酒屋,將“
百年老店”的美好愿景可視化,為顧客所信賴。
除了圖形元素之外,品牌主色調是品牌形象體系的核心組成部分。色彩不僅能傳達品類特質,更具有超強的品牌識別力量。色彩是餐飲品牌及空間設計中最重要的元素之一,
在餐飲空間中,色彩搭配對環境氛圍以及人們的心理感受起著不可忽視的作用。品深餐飲設計研究發現:食客在進入一個陌生的餐飲空間時,80%左右的注意力是集中在空間中的一個突出色塊上,之后才會轉向其他元素,這是人的一個固化習慣,所以,在品深設計的餐飲門店空間中,色彩的搭配極為關鍵。
在確定玉椿的品牌主色調上,我們從品牌的文化起源地——京都,查閱了大量燒鳥店、居酒屋的影像資料。發現那些歷經傳承的燒鳥店,居酒屋,都隱藏在京都的小街小巷中,斑駁的大門,青黑色石板路在歲月的沖刷下,有一層溫潤如玉的包漿,厚重素樸,令人悠然而生的一種敬意。以此為淵源出處,我們定出了第一種主色:
炭黑色。此色可以傳遞厚重歷史底蘊的品牌特質,同時也是燒鳥用的備長炭所呈現的色,與品牌屬性完整契合。黑色也能很好地傳遞出品牌權威、復古、正宗的日式居酒屋的內在特征。
苔綠是日本京都最喜歡的色,是寓意萬古長青的象征之色。該色非常符合我們品牌需要傳達的百年老店的歷史氣質。在自然的顏色中,綠色是最具生命力的色彩。我們所設計的苔蘚綠加入了大量的灰色調,低飽和度的它,有著與生俱來的清新與自然,但同時又可以演繹出典雅從容的復古氣息。這是我們品牌的第二主色調。
東云色,也稱為曙色,是像黎明時東方天空一樣的黃紅色,是江戶時代出現的比較新穎的色名。因為曙染是和服的染色手法,誕生于江戶時代。染衣服下擺的時候,留一點白;染衣服上部的時候,用紅色之類暈染。正如名字中的“曙”一樣,曙染是將衣服染成黎明時天空的樣子,“曙色”即來自于此。這與品牌起源于日本歷史上的江戶時期完全契合。同時,曙色還是備長炭燃燒時火焰的顏色,備長炭火苗正旺,燒鳥味美香飄散;曙色還很好的表達出了燒鳥店的品類特征,也能傳達出熱鬧、愉快,享受美味燒鳥料理,暢飲清酒的心理感受。
米是日料的主食,即使在飲食多樣化的今天,一碗米飯在日本人心目中的地方依舊不可動搖。再看看日本的傳統調料味增和味啉,日本的國酒——日本清酒,日本的小食如仙貝、年糕等,所用的主要材料都是米。米,是日本清酒的基礎與靈魂。清酒就是用米這一最單純的原料,最繁復的做法,奉獻出細致口感,舉世無雙的華麗味道!
米白色象征大米,代表清酒,是居酒屋酒水的色彩表達。
苔綠色、東云色、米白色、炭黑色,四種顏色,又分別象征春夏秋冬四季及一年四季不同的應季食物。讓各種當季食材去滿足身體在各個季節的不同需要,自然均衡地為身體提供最豐富的營養。我們不僅用色彩來表達品牌的品類特點屬性,也融合了色彩來表達“食隨四季”的日本料理飲食理念,而這也是玉椿品牌堅守的初心。
五、空間裝飾設計
讓顧客感受到居酒屋的熱鬧感,燒鳥店的煙火氣,京都老店的歷史文化魅力
在品深餐飲全案策劃設計中,餐飲門店的空間設計是最為重要的形象打造環節,品深餐飲將空間設計定義為消費者感受品牌,享受美味及餐廳服務的體驗之地。
它與整個品牌設計一脈相承,息息相關,是品牌形象的立體化表達。整個空間設計中任何一個圖形的使用,任何一塊地面鋪裝,任何一種立面造型,以及任何一款家具的款式顏色,空間中裝飾線條的表達,店面中照明燈具的款型及其他陳設軟裝等,都是從品牌整個形象規劃中邏輯推到演繹而來,服從于品牌的頂層規劃,與品牌整體調性完整統一。
玉椿燒鳥居酒屋首店位于深圳的餐飲網紅高地——車公廟十畝地正對面。門店之前是一家中餐的后廚的全部空間及部分包間,其中一半的面積屬于上一家餐廳自己搭建的二層。空間結構非常復雜,地面高地不平,尤其是搭建部分的1層,2層實際高度不到2.5米,心理感受很逼窄,這個場地極為
考驗品深項目團隊中空間設計師的功力水平。
餐飲空間設計核心在于把握兩個方面:
首先是餐廳運營的功能性滿足。
餐廳出品的種類及形式決定了餐廳的廚房面積大小及樓面前廳中各種功能的區域劃分;所處的商圈人群結構影響了餐區座位形式的分布;餐廳運行效率及經營盈虧平衡點則對空間利用、工程造價提出了相應的要求;
第二方面是整個空間
如何體現品牌的核心內涵
即餐廳的藝術性設計,這是玉椿區別于其他餐飲品牌最核心的特征。
品深認為:相對于其他日本料理,
溫暖治愈有煙火氣的居酒屋是打開心門的神奇鑰匙。在這里,可以褪下面具,卸下防備,輕松肆意地喝酒聊天,大聲談笑,沒有職場的煩惱,沒有生活的瑣碎,有的是伴隨冰涼的鮮啤入喉部之后的片刻歡愉,有的只是一個釋放自我的放空間。居酒屋的熱鬧感,燒鳥店的煙火氣,
京都老店的歷史文化魅力,是品深設計團隊需要重點突破的設計表達。
(一)、平面布局設計:功能利用最大化,運營效率更高效。
居酒屋的平面布局設計是所有餐廳空間設計中難度等級最高的一種。因為需要在極為有限的空間內滿足各種功能的需求,而且平面布局設計也是立面造型設計的前提,在完成了平面布局設計后,也就意味著立面造型的設計也大致確定了主題方向。
在本項目中,我們在顧客進餐廳大門的右手邊設置了水吧,收銀臺。居酒屋的酒水尤其是生啤非常好銷,水吧具備酒水制作的操作功能、收納功能及門口忙碌時的接待功能。功能如此繁多,品深餐飲的空間設計師需要把每個設備的尺寸都考慮到,尺寸偏差不能超過2厘米。收銀臺的功能反而要弱化,因為流行掃碼點餐,即時結算,顧客不再簇擁到收銀臺來結賬了。
最能體現居酒屋熱鬧感的是大廳,最能
感受燒鳥店煙火氣的是燒烤臺前的長吧臺。當我們坐在燒鳥長吧臺前,看著燒鳥師傅熟練地穿串,精準地控制火候,不時地翻動烤串,美味現場呈現,匠傳玉椿的理念就鮮明直觀地傳達出來了。所以,整個大廳都是圍繞著燒烤吧臺這一焦點而展開的,全部為單人椅及兩人座位,位置靈活組合,利用率非常高。
1樓是熱鬧區,二樓則是私密區,安靜區,6個包間,其中3個包間設置為榻榻米結構,滿足一部分顧客對日本料理飲食文化的追求,另外3個包間則使用了中式座椅,畢竟我們服務的絕大部分客人是中國人,
還是要以中國人的使用習慣為主。2樓的2個大包間中間使用折疊門,可大可小,可以滿足了周邊客人中一些商務宴請,企業團建,小型會議的用餐需求,包間消費也容易把營業流水做起來。
二樓除了必備的洗手間、儲物柜外,還設置了和服展示區,這是餐飲娛樂化的一大重要趨勢。
很多女性消費者在日本料理店消費時喜歡穿著和服自拍分享,彰顯個性也很有趣味,可以很好地把我們玉椿品牌傳播出去。品深餐飲設計就順應這種潮流趨勢,擁抱變化,主動設置拍照打卡區,讓消費者傳頌。
玉椿的整個空間中一樓大廳座位37個,外擺區32個,包間區35個,共計104個位置,按照8成座位利用率,人均120的消費,一天翻臺2次大約2萬元流水,周末可以做到3萬,加上外賣定食,每月營業額80-100萬之間是完全能夠實現的,這樣就形成了良好的門店經營及
盈利模式。
(二)、空間裝飾效果圖設計:展示“京都味道,匠傳玉椿”的品牌訴求重點。
空間裝飾效果圖設計,是空間裝飾設計中最重要的環節,用逼真的效果演繹出門店最終裝飾出來的整體氛圍感覺,讓甲方有直觀的視覺感受,代入體驗。唯有直面空間裝飾效果圖后,雙方才能不斷提出更貼合實際門店運營的科學建議,本階段的爭議最多,碰撞最激烈,雙方團隊的摩擦將從這里火爆開啟!
品深餐飲設計整個團隊再次回到品牌源點:
玉椿是一家源自日本江戶時期的京都風格的燒鳥居酒屋
京都是日本人的精神故鄉,是日本文化的源點,是日本的文化象征之地。京都是根據歷來王朝文化中盛行的日本式唯美意識所構建的。以神社、佛閣等歷史建筑物、庭院、繪畫、傳統活動、京都料理為代表,被稱為“
千年古都”。我們發現京都是日本古建筑保留最完整,古跡留存最多的城市,名勝古跡,數不勝數。玉椿要傳達京都味道,地域文化就是美食地道的證明。我們從門頭開始到天花吊頂、地面鋪設、墻面涂料、燈光、家具等各方面圍繞“
京都味道、匠傳玉椿”來展開步移景異,一步一景的空間效果圖設計。
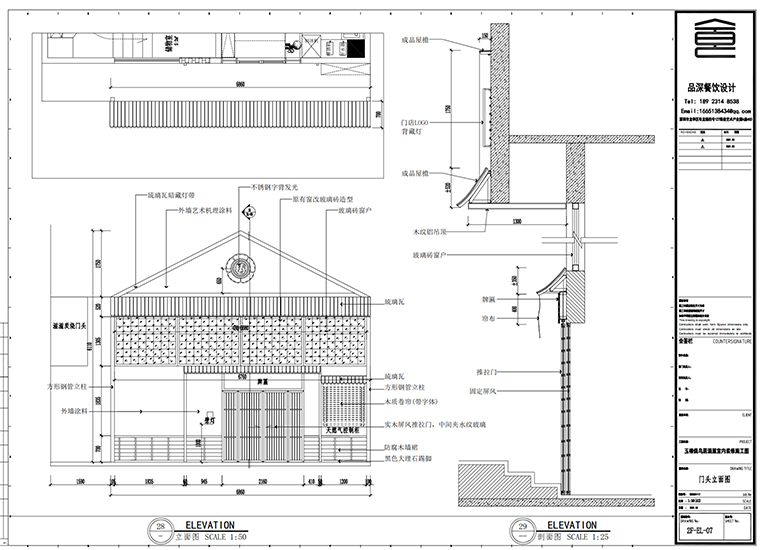
1、門頭及外立面設計:門頭是門店吸引顧客進店的指示牌,在空間展示中占的比例最高。品深餐飲設計總結的門頭設計三大原則。
(1)門頭醒目是第一原則, 字體能多大就多大。
(2)門頭不用英文、繁體字,要能傳達品類屬性,品牌特質,讓消費者看的懂,一目了然。
(3)提高門頭亮度,做到一條街上門頭最亮,吸引顧客進店。
玉椿的門頭,使用京都古建筑的山墻造型,中間裝飾“
椿”的家徽,既表達品牌名稱,又有強烈的復古氣質,極具江戶時代特征。
中間一排玻璃磚是整個門頭的點睛之筆,方形玻璃磚,厚度達到50MM,燈光照射下有一種晶瑩剔透的視覺感受,現代氣息濃厚。方形玻璃磚與門頭的復古氣質形成強烈對比。古典與現代碰撞,迸發出耀眼的視覺火花,消費者的眼光一下子就被吸引過來,并且迅速產生了一種迫切想進店的心理沖動。
門口的日式推拉門、地燈、青石板、椿花樹、炭黑色的日式布簾、遮蓋燃氣表箱體的竹制卷簾,整個門頭把
日本京都特征表達地非常鮮明且形式經典,識別度極高。
2、一樓大廳及吊頂的設計:把京都的古老街道,巷子搬到我們店里。整個大廳的頂部環繞一圈日式黑瓦頂,四周幾個日式玻璃木窗,與地面的青石瓦面,墻體的稻草漆,燒烤吧臺形成一體化的京都風格。置身其中,仿佛
漫步于京都的古老美食街道中,熙熙攘攘,熱鬧非凡,抬頭間還能看見二樓的日本侍女正在推開窗戶,朝著樓下觀望。
(三)落地施工圖設計:將裝飾效果完美落地,實現100%還原。
施工圖是餐飲空間設計落地中
非常重要的一環。從設計構思到效果落地,材質為載體,工藝來鏈接。整個施工過程的靈魂,就是全套施工圖紙。
怎么樣的施工圖是最標準,最容易執行的呢?
品深餐飲設計對此的定義是:完全能夠精確施工和把控預算。施工圖中,各種節點大樣足夠清晰,精準到一方桌椅,小到抽屜的一個把手,都要畫清楚,標明白。同時施工還離不開設計師的現場交底、節點驗收,項目經理的規范化管理,主創設計師或者工程經理的定期巡檢。與前期的品牌定位、文化策劃、形象設計同樣花費時間的就是深化階段的施工制圖。對材料、工藝的熟知,對細節的精準把握,對預算的合理劃分,最終將都呈現于一套餐飲空間詳細施工圖中。品牌餐飲門店的空間裝飾設計不僅是天馬行空,落在圖上的每一處,才是品深餐飲設計師數十年的經驗沉淀。
本次玉椿施工圖落地環節,遇到的難題不少,存在的問題也不少。其中就有甲方將工程發包給施工團隊,施工方總價包干。品深設計師在挑選材料時候的受限較多,很多工藝要求也因為成本關系,不得不做調整,來來回回,耗費巨大時間和精力,效果自然受了影響,打了折扣。
六、軟裝陳列及物料應用設計
品牌文化、品牌形象、品牌內涵的軟性展示。
在品深餐飲全案策劃設計中,軟裝陳列和平面物料應用設計是品牌文化、品牌形象、品牌內涵的軟性展示之處,品深設計總是善于通過以潤物細無聲的方式將餐飲品牌
植入到消費者心智中。
為了營造京都風格的空間感受,品深餐飲為玉椿設計定制的家具采用了實木材質,開放漆做舊工藝處理,呈現出一種江戶時代的歷史滄桑質感;與門店的招牌匾額,儲存柜顏色完全一致,顧客使用時候的歷史
體驗感更為強烈。
門店應用物料設計、空間導視設計,品深餐飲設計團隊始終堅持將整體空間與品牌完整統一,精細到與顧客接觸最多的墊餐紙、掃碼點餐牌、員工的工衣胸牌、菜品圖片的風格,全部統一在玉椿品牌的形象及文化體系之內,給顧客以視覺整齊劃一的美學感受。與品牌其他元素發生協同效應,形成能量強大的
品牌共振力。
七、廣告宣傳
推廣話語體系及廣告宣傳畫面減少信息干擾,聚焦品牌傳播,讓玉椿迅速被消費者所熟知!
玉椿作為一家剛進入深圳市場的日本料理燒鳥居酒屋品牌,
應該從哪些維度把品牌宣傳推廣出去呢?
這是品深餐飲設計團隊從玉椿品牌文化體系的構建及形象的設計一開始就在不斷提煉總結并優化的內容。品深餐飲設計認為:過去的用戶是根據slogan去找菜品、找服務。現在的用戶是跟隨內心的感覺去找菜品找品牌找餐廳。
我們做品牌推廣的重心是什么呢?
就是讓用戶心里對玉椿品牌產生感覺。這個感覺是通過圖片、文字、視頻、音頻甚至是朋友的口口相傳來產生的。
所以品深餐飲全案策劃設計團隊首先提出了玉椿的品牌描述:“
上古有大椿者,以八千歲為春,以八千歲為秋。”這句話來自莊子的《逍遙游》,我們將玉椿綁定在中國的文化母體上,這句話是經過幾千年傳頌下來,既表明我們品牌由來,又讓消費者感覺到品牌的歷史悠久。我們直接拿過來用,能量極大,還不需要額外花錢,這是典型的最高明的抄襲。而且這句話不僅在中國被熟知,在日本文化中也是經典,傳頌了千年。當消費者讀完這句話,對我們產生了認知和記憶,玉椿也基本上被記住了。八千年,這個話語足夠大,力量足夠強,還有誰能超過它?這句話很好地將品牌淵源與品牌名稱綁在一起,聚焦品牌核心名“椿”,減少信息干擾,聚焦品牌傳播,讓
品牌迅速被人所知曉。
相對于靜態的畫面,
動態的視頻更具趣味性和傳播力,品深餐飲團隊從“
拆:把一只完整的走地雞分部位拆開,把這只雞的各個部位在最合適的時間展現出最好的火候和最美的味道;
串:穿串三年,烤串一生;
烤:用備長炭烤制雞,撒鹽、蘸醬,美味燒鳥;
匠:做新鮮魚類的刺身展示;
酒:日本各種清酒歡聚歡迎的熱鬧場面景象。”等幾個方面,用心拍攝精心剪輯了一個90秒的小視頻,在各大網絡平臺上播放宣傳,傳播效果非常好。

日本料理品牌玉椿燒鳥居酒屋作為一家定位為“一家燒鳥做得很地道,刺身、壽司味道也很好,環境很日式,氛圍很舒服,消費很實惠的日本燒鳥居酒屋老品牌”,首次進入中國的粵港澳大灣區,在玉椿管理團隊與品深餐飲策劃設計團隊的通力合作下,始終圍繞“京都味道、匠傳玉椿”的品牌訴求核心,構建了完善的品牌文化體系,再通過品牌形象設計及主色調將玉椿燒鳥居酒屋潛藏的品牌能量激活出來。再以空間立體化的形式將日本居酒屋的消費文化,燒鳥品類的核心特點表達出來。形成了從虛的文化到實的場景,將難于描述清晰的品牌內涵處處展現在空間裝飾,軟裝陳設、應用物料,營銷推廣中,以一種潤物細無聲的溫雅柔性方式將玉椿燒鳥居酒屋的厚重品牌歷史植入到顧客心智中,形成深刻的品牌烙印,讓顧客耳目一新,紛紛打卡,進店消費。也讓一個有底蘊的品牌在粵港澳大灣區迅速走紅,在較短時間內實現了門店盈利狀況良好,經濟效益與品牌效應雙贏的優良局面。